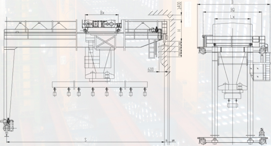
BMH型-門式起重機(半門式)
BMH半門式起重機與CD?、MD?等型號的電動葫蘆配套使用,是一種有軌運行的中小型起重機,本產品多為地面操縱或遙控操縱兩種形式。
- 型號: BMH型
- 品牌: 恒立源
- 跨度: 可定制
- 起重量: 可定制
- 起升高度: 可定制
關閉
產品咨詢
客服熱線:400-700-9997

